GST-LD-8303海灣卷簾門兩步降消防模塊安裝接線圖
GST-LD-8303輸入/輸出模塊是一種總線制控制接口,可用于完成對二步降防火卷簾門、水泵、排煙風機等雙動作設備的控制。主要用于防火卷簾門的位置控制,能控制其從上位到中位,也能控制其從中位到下位,同時也能確認防火卷簾門是處于上、中、下的哪一位。該模塊也可作為兩個獨立的GST-LD-8301輸入/輸出模塊使用。 海灣消防報警設備工程師將為大家介紹海灣卷簾門兩步降消防模塊安裝接線示意圖:
8303消防控制模塊的外形尺寸及結構示意圖如圖2-44所示。


8303消防控制模塊的安裝方法與GST-LD-8319輸入模塊相同,其對外端子示意圖如圖2-45:


其中:
Z1、Z2:接火災報警控制器信號二總線,無極性
D1、D2:DC24V電源輸入端子,無極性
I1、G:第一路無源輸入端(可通過電子編碼器設為常開檢線、常閉檢線、自回答方式)
I2、G:第二路無源輸入端(可通過電子編碼器設為常開檢線、常閉檢線、自回答方式)
S1+、S1-:第一路有源輸出端子
S2+、S2-:第二路有源輸出端子
布線要求:信號總線Z1、Z2采用阻燃RVS雙絞線,截面積≥1.0mm2;電源線D1、D2采用阻燃BV線,截面積≥1.5mm2;I1、I2、G、S1+、S1-、S2+、S2-采用阻燃RV線,截面積≥1.0mm2。
GST-LD-8303應用方法
模塊輸入端如果設置為“常開檢線”狀態(tài)輸入,模塊輸入線末端(遠離模塊端)必須并聯(lián)一個4.7kΩ的終端電阻;模塊輸入端如果設置為“常閉檢線”狀態(tài)輸入模塊輸入線末端(遠離模塊端)必須串聯(lián)一個4.7kΩ的終端電阻。模塊為有源輸出時,有源輸出端應并聯(lián)一個4.7kΩ的終端電阻,并串聯(lián)一個IN4007二極管。
a.模塊與防火卷簾門電氣控制箱(標準型)接線示意圖如圖2-46(無源常開檢線輸入)、圖2-47所示(無源常閉檢線輸入):


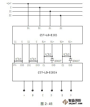
b.GST-LD-8303型模塊與GST-LD-8302A型模塊組合連接的方法如圖2-48所示:


海灣消防安全有限公司主營:GST海灣消防報警設備銷售,消防工程施工改造,氣體滅火、電氣/漏電火災、消防水系統(tǒng)施工安裝,售后維修保養(yǎng),檢測,調(diào)試,海灣消防網(wǎng)站:http://www.zjgznjx.com/;海灣消防服務熱線:4006-598-119
本頁關鍵詞:


蘇公網(wǎng)安備32058102002148號